3+ bedroom apartment for sale • Sant'Angelo in Pontano - Contrada L'Immacolata
SANT'ANGELO IN PONTANO – L’IMMACOLATA - SEMIDEATCHED HOUSE SQM. 82 WITH COURTYARD. FOR SALE.
In the Municipality of Sant’Angelo in Pontano, exactly in Contrada L’Immacolata, Quattropareti offers for sale a terraced house on 3 floors and free on 3 sides, for a total of approx. sqm. 82 (conventional), with cellar and exclusive courtyard.
The unit is in good condition and is part of a building consisting of three houses recently restored and reinforced following the latest earthquakes.
In the external part of the property, the surrounding courtyard is shared with the other houses, while there is an exclusive courtyard of approx. 315 located a few steps from the entrance to the unit.
Northwest exposure, overlooking the surrounding countryside.
Convenient location and easy access from the road that connects the town center to Passo Sant’Angelo.
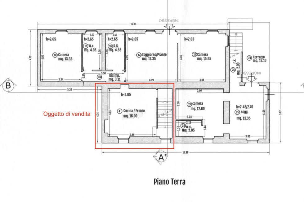
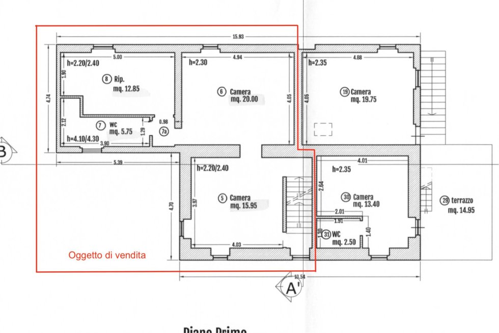
DIVISION OF THE ENVIRONMENTS AND REAL SURFACES:
Kitchen with fireplace sqm. 16.00 (first floor);
Living room sqm. 15.95;
Bedroom 1 sqm. 20.00;
Bedroom 2 sqm. 12.85 with mezzanine;
Bathroom with shower sqm. 5.75;
The property is completed by the attic of approx. sqm. 40.35 and the cellar with bathroom sqm. 21.20.













R6,806,000
R1,705,000
R5,725,000
R6,724,000
R9,587,000
R8,069,000